zanderroth
news
projects
profile
contact
de
en
grue
grue
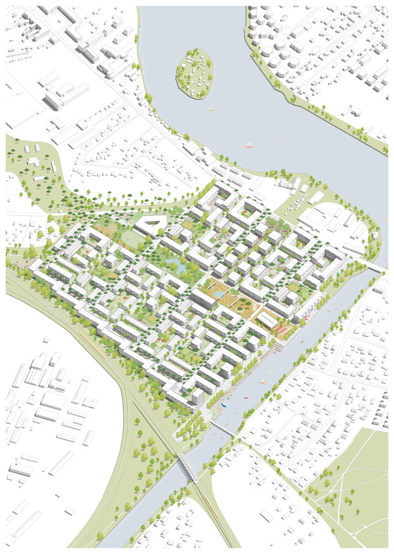
Green Village - Urban development Gruenauer Strasse, Berlin-Gruenau